
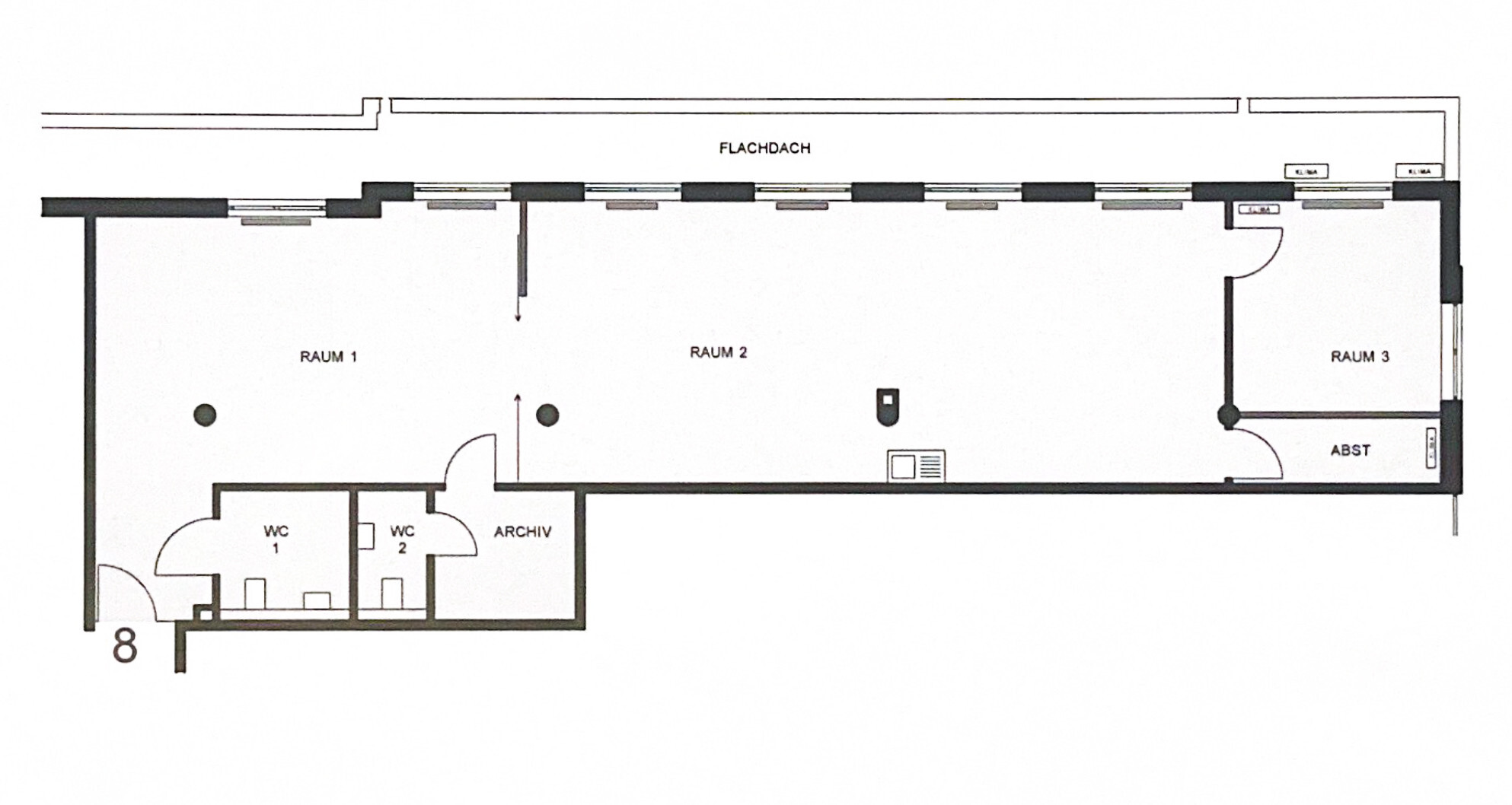
Objektbeschreibung
Moderne offen gestaltete Bürofläche für ein kreatives Arbeitsumfeld, wie z.B. eine Agentur. Nutzbar als Großraumbüro, Co-Working-Space oder auch räumlich teilbar nach Bedarf und Nutzungswunsch.
1 separater Büroraum existiert bereits mit Klimaanlage,
der z.B. für eine Führungskraft oder als Besprechungsraum zur Verfügung steht.
Der Serverraum ist ebenfalls klimatisiert.
Auf einer Gesamtfläche von ca. 135 m² präsentiert sich Ihnen ein idealer Grundriss für die Möglichkeit zur vornehmlichen Nutzung als Büro.
Wenn wir Ihr Interesse geweckt haben, dann kontaktieren Sie uns bitte.
Gerne lassen wir Ihnen ein ausführliches Exposé zukommen.
Ausstattung
Insgesamt stehen 3 Büroräume, ein kleiner Abstellraum und ein Archivraum zur Verfügung.
Zwei Büroräume, können als Großraumbüro genutzt werden oder durch eine Schiebetür geteilt werden.
Zusätzlich mit 2 WCs ausgestattet.
Büro mit barrierefreiem Zugang.
Kundenparkplätze befinden sich direkt vor der Tür.
Alle Räume inkl. Netzwerkverkabelung und Beleuchtung.

Raum 1
Virtueller Rundgang
Fakten
Gesamtfläche
Baujahr
Lage
Für eine Gewerbeimmobilie ideal zentral gelegen - nur 5 Minuten Entfernung zur Innenstadt von Gaggenau mit Geschäften und vielen Einrichtungen, wie Rathaus, Schulen, Kindergarten und Bahnhof.
Gaggenau zählt zu den beliebtesten Städten im Murgtal, mit einer perfekten Infrastruktur, wirtschaftsstarken Arbeitgebern wie z.B. Mercedes-Benz und zahlreichen Freizeitmöglichkeiten.
Für Unternehmen ist die Stadt Gaggenau interessant aufgrund ihrer strategischen Lage, gut entwickelten Infrastruktur und der Nähe zu wichtigen Verkehrsanbindungen, wie der B462 mit dem Anschluss an die A5 und der Nähe zu Karlsruhe.
Kaufpreis
auf Anfrage

Informationen
Autobahnanschluss,
ca. 9.20 km mit dem PKW
Entfernung zum nächsten Flughafen,
ca. 27.00 km
Entfernung zum nächsten Bahnhof,
ca. 12.80 km
Entfernung zum Zentrum,
ca. 0.80 km
Entfernung zum nächsten Kindergarten,
ca. 1.30 km
Entfernung zur nächsten Grundschule,
ca. 1.00 km
Entfernung zur nächsten Realschule,
ca. 1.00 km
Entfernung zum nächsten Gymnasium,
ca. 0.80 km
Ihr Ansprechpartner

Geschäftsinhaber
Björn Disse
07222-94440 disse@jutt-immobilien.deUnsere Standorte
Möchten Sie von Google Maps bereitgestellte externe Inhalte laden? Sie können die Darstellung dauerhaft über die
Cookie Einstellungen
erlauben.
Um mehr zu erfahren, lesen Sie bitte unsere Datenschutzerklärung.