• Anbau/ Wohnzimmer 2
  • Wohnzimmer
  • Gartenansicht
  • Terrasse
  • Zimmer EG
  • Diele
  • Küche
  • Flur 1.OG
  • Kinderzimmer 1.OG
  • Schlafen 1.OG
  • Bad 1.OG
  • Ausbaureserve
  • Garten
  • Garage im Haus

Einfamilienhaus mit neuem Dach, Ausbaureserve u. sonnigem Grundstück in guter Wohnlage von Malsch

Anbau/ Wohnzimmer 2

Anbau/ Wohnzimmer 2

Objektbeschreibung

Die Basis stimmt, der Innenausbau steht an.

Bereits entkerntes Wohnhaus mit komplett neuem Dach und Dachstuhl (2025).
Sie erwartet eine großzügiges Wohnambiente und schönes Gartengrundstück mit guter Sonnenausrichtung in ruhiger Wohnlage in Malsch.

Erstmal erbaut 1962 und 1973 durch einen Anbau auf der rechten Seite erweitert.

Es gibt viel zu entdecken.
Wenn wir Ihr Interesse geweckt haben, dann kontaktieren Sie uns bitte.
Gerne lassen wir Ihnen ein ausführliches Exposé zukommen.

Ausstattung

Erneuerung Dachstuhl und Dach 2025
Das Haus ist vollständig entkernt
Massive Bauweise mit Anbau
Ausbaureserve im Dachgeschoss
Fenster aus 2-facher Holzisolierverglasung aus 2001
Für das Auto ist eine Garage vorhanden und als weitere Nutzfläche dient ein großes Kellergeschoss.

Wohnzimmer

Wohnzimmer

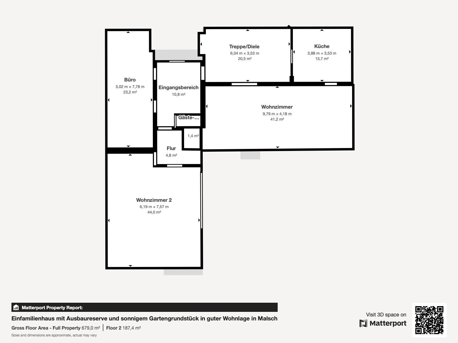
Fakten

610 m2

Grundstücksgröße

300 m2

Wohnfläche

8

Zimmer

5

Schlafzimmer

2

Badezimmer

3

Etagen

1

Balkon

1962

Baujahr

Energieausweis

Energieausweis

Primärenergiebedarf 323.80 kWh / (m²*a) - Energieträger: Öl | Baujahr Heizung: 1973

Provision

3,57% inklusive der gesetzlichen MwSt. bezogen auf den Kaufpreis nach notariellem Vertragsabschluss.

Lage

Die Gemeinde Malsch liegt etwa 20 km südlich von Karlsruhe. Durch die Lage sowie die gute Infrastruktur ist Malsch ein beliebter Wohn- und Wirtschaftsstandort.
In Malsch gibt es vier allgemeinbildende Schulen und sieben Kindergärten. Das Malscher Zentrum, das Sie von Ihrem neuen Zuhause fußläufig erreichen, bietet Restaurants und Einkaufsmöglichkeiten in Ihrer Nähe.

Kaufpreis

610.000 €

Anbau/ Wohnzimmer 2

Informationen

Autobahnanschluss,
ca. 8.00 km mit dem PKW

Entfernung zum nächsten Flughafen,
ca. 30.00 km

Entfernung zum nächsten Bahnhof,
ca. 2.30 km

Entfernung zum Zentrum,
ca. 1.70 km

Entfernung zum nächsten Kindergarten,
ca. 1.80 km

Entfernung zur nächsten Grundschule,
ca. 1.60 km

Entfernung zur nächsten Realschule,
ca. 1.60 km

Entfernung zum nächsten Gymnasium,
ca. 13.00 km

Ihr Ansprechpartner

Bjoern disse

Geschäftsinhaber

Björn Disse

07222-94440 disse@jutt-immobilien.de
Dipl. Sachverständiger für die Bewertung von bebauten und unbebauten Grundstücken, für Mieten und Pachten sowie Beleihungswertermittlung (DIA)

Unsere Standorte

Möchten Sie von Google Maps bereitgestellte externe Inhalte laden? Sie können die Darstellung dauerhaft über die Cookie Einstellungen erlauben.

Um mehr zu erfahren, lesen Sie bitte unsere Datenschutzerklärung.

Ihr Ansprechpartner

Björn Disse
Inhaber

Diplom Sachverständiger (DIA)

+49 (0)7222 9444 0 E-Mail senden

Ihr Ansprechpartner Björn Disse