
Wohnzimmer OG
Objektbeschreibung
Liebevoll modernisiertes Fachwerkhaus mit 3 Pferdeboxen direkt in Iffezheim.
Das Diehm Haus mit historischer Bekanntheit wurde 1791 erbaut und ab dem Jahr 2012 überwiegend saniert und in den letzten Jahren fortlaufend modernisiert.
Ein schönes Wohnambiente, nutzbar als Einfamilienhaus mit Einliegerwohnung oder Zweifamilienhaus. Oder auch eine Kombination aus Wohnen und Arbeiten unter einem Dach.
Besonders hervorzuheben für Pferdeliebhaber ist der sehr gut nutzbare Innenhof mit 3 modernen Pferdeboxen, Sattelkammer und Scheune. Eine seltene Gelegenheit dies innerorts mit guter Infrastruktur und direkter Nähe zu den Grünflächen und der Pferderennbahn in Iffezheim auszuleben.
Der Energieausweis liegt zur Besichtigung vor.
Es gibt viel zu entdecken.
Wenn wir Ihr Interesse geweckt haben, dann kontaktieren Sie uns bitte.
Gerne lassen wir Ihnen ein ausführliches Exposé zukommen.
Ausstattung
Über die Jahre vollständig fortlaufend modernisiert:
Fachwerkhaus mit Außenwänden vorwiegend aus Lehm-Strohwickel
Dämmung aller Außenwände von innen in 2012/13 mit 15 cm starker Mineralfaserwolle
Dämmung des Dachgeschosses mit 30 cm starker Mineralfaserwolle in 2012/13
Erneuerung 2-fach Kunststoff Isolierverglasung in 2016
Erneuerung der Heizungsanlage (Gas-Brennwert) in 2004 mit zusätzlichen Kaminöfen für feste Brennstoffe
Einbau einer solaren Warmwasserunterstützung in 2013
Erneuerung der Bäder

Wohnzimmer OG
Virtueller Rundgang
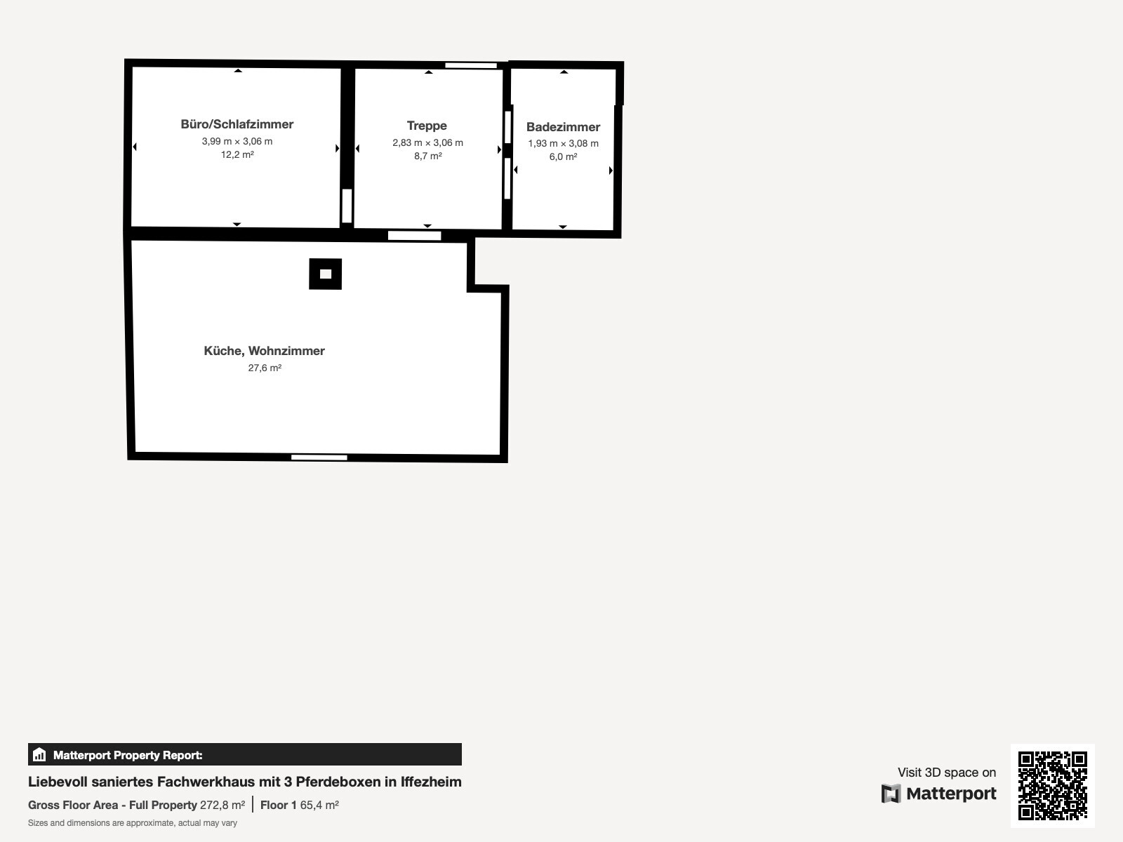
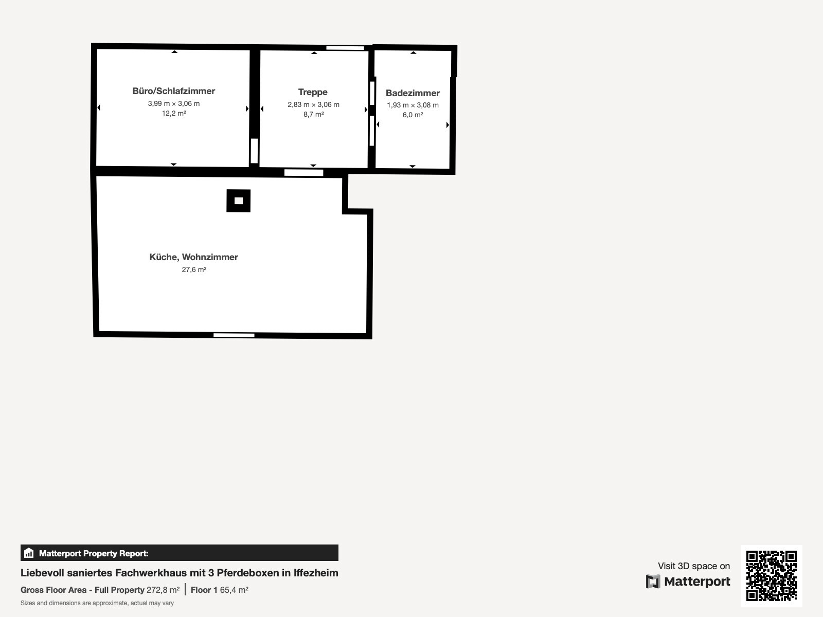
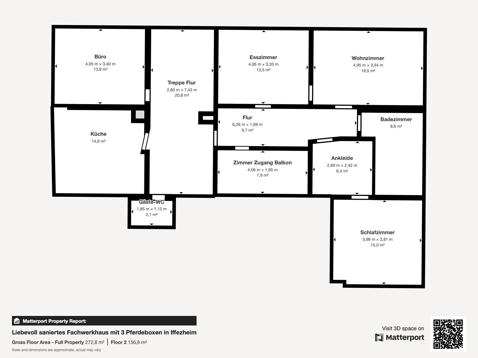
Fakten
Grundstücksgröße
Wohnfläche
Zimmer
Schlafzimmer
Badezimmer
Etagen
Balkon
Baujahr
Provision
3,57% inklusive der gesetzlichen MwSt. bezogen auf den Kaufpreis nach notariellem Vertragsabschluss.
Lage
Iffezheim ist eine charmante Gemeinde im Landkreis Rastatt in Baden-Württemberg, die sich durch ihre idyllische Lage und hervorragende Anbindung auszeichnet. Die Gemeinde liegt direkt an der Grenze zu Frankreich, nur wenige Kilometer von der Stadt Baden-Baden entfernt, und bietet somit eine attraktive Kombination aus ländlichem Flair und urbaner Nähe.
Die Gemeinde selbst bietet eine hohe Lebensqualität mit einer Vielzahl von Freizeitmöglichkeiten. Iffezheim ist von einer malerischen Landschaft umgeben, die zu ausgedehnten Spaziergängen, Radtouren und anderen Outdoor-Aktivitäten einlädt. Die Nähe zum Rhein und die angrenzenden Naturschutzgebiete bieten zudem zahlreiche Möglichkeiten zur Erholung und Entspannung in der Natur.
In Iffezheim finden sich zudem alle wichtigen Einrichtungen des täglichen Bedarfs, darunter Einkaufsmöglichkeiten, Schulen und Kindergärten. Die Gemeinde legt großen Wert auf ein aktives Gemeinschaftsleben und bietet zahlreiche Veranstaltungen und Aktivitäten für Jung und Alt.
Kaufpreis
595.000 €

Informationen
Autobahnanschluss,
ca. 5.00 km mit dem PKW
Entfernung zum nächsten Flughafen,
ca. 10.00 km
Entfernung zum nächsten Bahnhof,
ca. 0.10 km
Entfernung zum Zentrum,
ca. 0.10 km
Entfernung zum nächsten Kindergarten,
ca. 0.80 km
Entfernung zur nächsten Grundschule,
ca. 0.40 km
Entfernung zur nächsten Realschule,
ca. 1.00 km
Entfernung zum nächsten Gymnasium,
ca. 0.50 km
Ihr Ansprechpartner

Geschäftsinhaber
Björn Disse
07222-94440 disse@jutt-immobilien.deUnsere Standorte
Möchten Sie von Google Maps bereitgestellte externe Inhalte laden? Sie können die Darstellung dauerhaft über die
Cookie Einstellungen
erlauben.
Um mehr zu erfahren, lesen Sie bitte unsere Datenschutzerklärung.