
Objektbeschreibung
Große und renovierungsbedürftige Erdgeschosswohnung (Hochparterre) mit Balkon in Gaggenau.
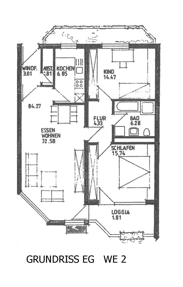
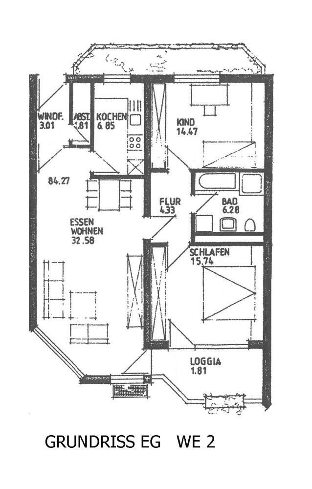
Gute Aufteilung mit großen und hellen Räumen.
Das Wohnzimmer bietet Platz für eine Essecke und gewährt Zugang zum sonnigen Balkon.
Die Wohnung ist leer und kann sofort bezogen werden.
Zur Wohnung gehört noch ein Kellerraum.
Es gibt viel zu entdecken.
Wenn wir Ihr Interesse geweckt haben, dann kontaktieren Sie uns bitte.
Gerne lassen wir Ihnen ein ausführliches Expose zukommen.
Ausstattung
Ausgestattet mit neuer Gas-Zentralheizung (August 2019) , Holzrahmenfenstern mit Isolierverlasung und Rollläden, Naturholztüren in weißen Stahlzargen, gefliestes Bad im Stile des Baujahres, Bodenbeläge mit Fliesen- und Laminatböden, überwiegend Raufasertapeten an den Wänden.

Wohnzimmer
Fakten
Wohnfläche
Zimmer
Schlafzimmer
Badezimmer
Etagen
Balkon
Baujahr
Energieausweis

Primärenergiebedarf 156.80 kWh / (m²*a) - Energieträger: Gas | Baujahr Heizung: 1983
Provision
3,57% inklusive der gesetzlichen MwSt. bezogen auf den Kaufpreis nach notariellem Vertragsabschluss.
Lage
Reines Wohngebiet. Wenige Gehminuten zu Kindergarten, Grund- und Hauptschule (Realschule und Gymnasium sind in der nahen Innenstadt). Verschiedene Einkaufsgeschäfte, Apotheke, Bankfilialen usw. sind in nächster Nähe. Ca. 1 km zur Stadtbahnhaltestelle in Richtung Rastatt, Karlsruhe bzw. Richtung Freudenstadt und Busverbindung nach Baden-Baden.
Kaufpreis
198.000 €

Informationen
Autobahnanschluss,
ca. 2.00 km mit dem PKW
Entfernung zum nächsten Flughafen,
ca. 31.00 km
Entfernung zum nächsten Bahnhof,
ca. 2.00 km
Entfernung zum Zentrum,
ca. 2.00 km
Entfernung zum nächsten Kindergarten,
ca. 2.00 km
Entfernung zur nächsten Grundschule,
ca. 2.50 km
Entfernung zur nächsten Realschule,
ca. 3.50 km
Entfernung zum nächsten Gymnasium,
ca. 2.00 km
Ihr Ansprechpartner

Verkauf von Immobilien
Anke Käfer
07222-944416 kaefer@jutt-immobilien.deUnsere Standorte
Möchten Sie von Google Maps bereitgestellte externe Inhalte laden? Sie können die Darstellung dauerhaft über die
Cookie Einstellungen
erlauben.
Um mehr zu erfahren, lesen Sie bitte unsere Datenschutzerklärung.