Objektbeschreibung
                            Ruhig gelegene denkmalgeschützte Villa mit 5 Wohneinheiten auf insgesamt 399 m² Wohnfläche und Außenstellplätzen in der Baden-Badener Weststadt.
Erstmalig erbaut in 1913 auf einem Grundstück mit 2.330 m² und fortlaufend modernisiert eignet sich das herrschaftliche Gebäude gleichermaßen als Kapitalanlage oder zu entwickelndes repräsentatives Bürogebäude.
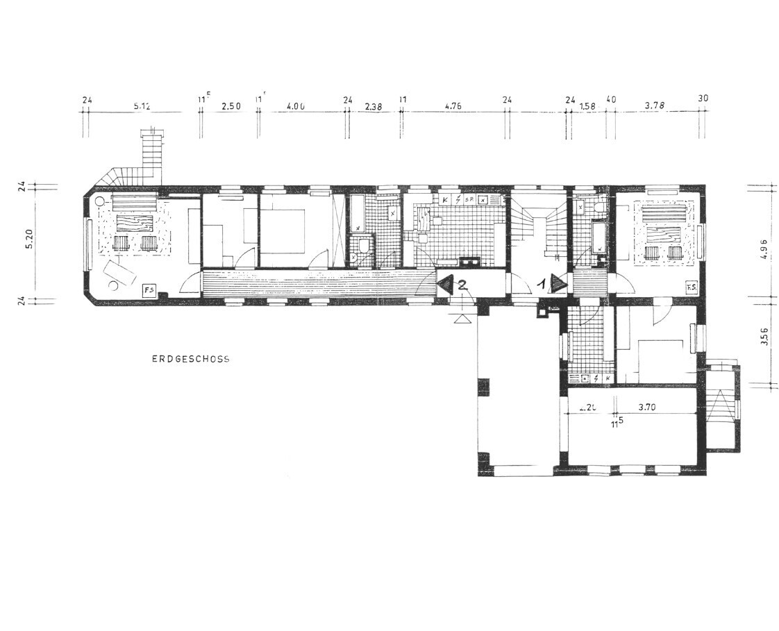
Bestehend aus jeweils 2 Wohnungen im Erdgeschoss mit Gartenanteil.
2 Wohnungen im 1.Obergeschoss mit großzügigen Balkonen/ Dachterrasse.
1 Wohnung im Dachgeschoss.
In 2008 wurde das Dachgeschoss weiter ausgebaut und renoviert: Einbau von Küchen, Fenster mit Kunststoff-Isolierverglasung, Elektrik und Bäder wurden teilsaniert. Solaranlage auf dem Dach. Voll unterkellert. Die Beheizung erfolgt mit einer Ölzentralheizung aus dem Jahr 2010 zusätzlich sind teilweise offene Kaminöfen in den Wohnzimmern vorhanden.
Wenn wir Ihr Interesse geweckt haben, dann kontaktieren Sie uns bitte.
Gerne lassen wir Ihnen ein ausführliches Exposé zukommen.
Hinweis: Für die Planung von Besichtigungsterminen, bitten wir vorab um eine (vorläufige) Finanzierungsbestätigung oder einen Kapitalnachweis.
                        
Ausstattung
                            Denkmalgeschützte Villa mit 5 Wohnungen in 2008 vollständig renoviert:
neue Fenster, Heizung, Innenausstattung: Solar, Ölzentral, Ofen, Kamin, Kunststoff-Isoverglasung, Einbauküchen
                        
                                                                                        Wohnen 1.OG
Fakten
Grundstücksgröße
Wohnfläche
Zimmer
Schlafzimmer
Badezimmer
Etagen
Balkone
Stellplätze
Baujahr
Provision
3,57% inklusive der gesetzlichen MwSt. bezogen auf den Kaufpreis nach notariellem Vertragsabschluss.
Lage
                        Die Villa ist ruhig gelegen in der beliebten Weststadt von Baden-Baden. In der nahen Umgebung befinden sich verschiedene Einkaufsmöglichkeiten mit Bäckereien, Einzelhandel, Apotheken, Ärzte, Banken, Kindergarten und Schule.
Wenige Minuten entfernt zum Stadtzentrum Baden-Badens mit seiner berühmten Lichtentaler Allee, der B500 und öffentlichen Verkehrsmitteln. Eine schnelle Erreichbarkeit der Autobahnzufahrt A5 für Berufspendler nach Karlsruhe, Bühl oder Rastatt.
                    
Kaufpreis
1.320.000 €
            Informationen
                                Autobahnanschluss,
ca. 4.00 km mit dem PKW
                            
                                Entfernung zum nächsten Flughafen,
ca. 13.00 km
                            
                                Entfernung zum nächsten Bahnhof,
ca. 2.00 km
                            
                                Entfernung zum Zentrum,
ca. 5.00 km
                            
                                Entfernung zum nächsten Kindergarten,
ca. 0.50 km
                            
                                Entfernung zur nächsten Grundschule,
ca. 0.50 km
                            
                                Entfernung zur nächsten Realschule,
ca. 5.00 km
                            
                                Entfernung zum nächsten Gymnasium,
 ca. 5.00 km
                            
Ihr Ansprechpartner
            Geschäftsinhaber
Björn Disse
07222-94440 disse@jutt-immobilien.deUnsere Standorte
                    Möchten Sie von Google Maps bereitgestellte externe Inhalte laden? Sie können die Darstellung dauerhaft über die 
                        Cookie Einstellungen
                     erlauben.
Um mehr zu erfahren, lesen Sie bitte unsere Datenschutzerklärung.