• Wohnzimmer EG
  • Balkon EG
  • Blick vom Balkon EG
  • Küche EG
  • Küche EG
  • Flur EG
  • Büro EG
  • Bad EG
  • Schlafzimmer EG
  • Wohnen 2.OG
  • Büro 2.OG
  • Flur 2.OG
  • Balkon 2.OG
  • Küche 2.OG
  • Bad 2.OG
  • Wohnen DG
  • Flur DG
  • Küche DG
  • Gästezimmer/ Büro DG
  • Bad DG
  • Schlafzimmer DG
  • Balkon DG
  • Bad 1.OG
  • Treppenhaus

Gepflegtes Mehrfamilienhaus in der Innenstadt von Baden-Baden

Objektbeschreibung

Gepflegtes Stadthaus mit 4 Wohneinheiten auf insgesamt 305 m² Wohnfläche und einer Garage in Baden-Baden.
Erstmalig erbaut in 1928 auf einem Grundstück mit 250 m² und fortlaufend instandgehalten bietet das Gebäude eine solide Basis als Kapitalanlage.
Bestehend aus 3 Vollgeschossen und ausgebauten Dachgeschoss mit jeweils einer Wohneinheit pro Etage.

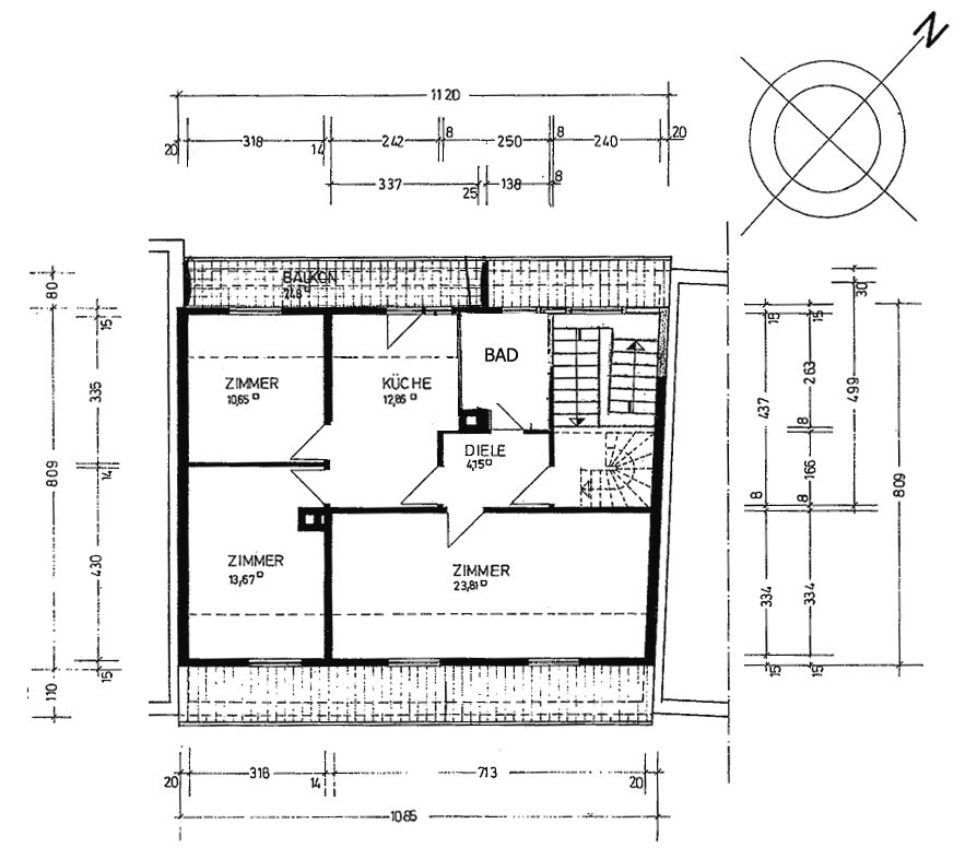
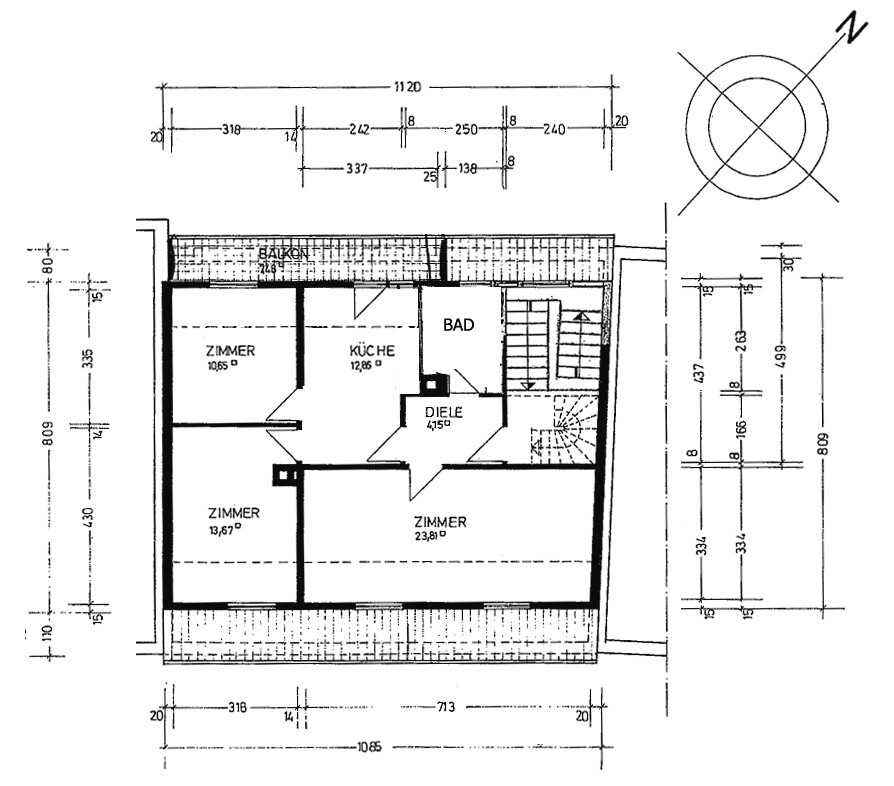
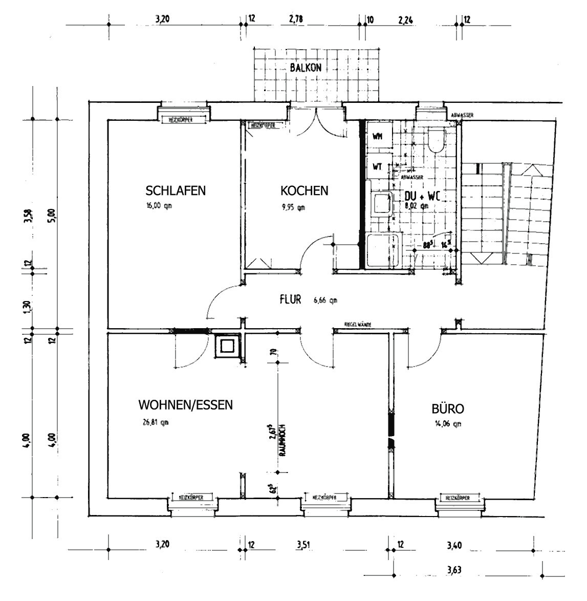
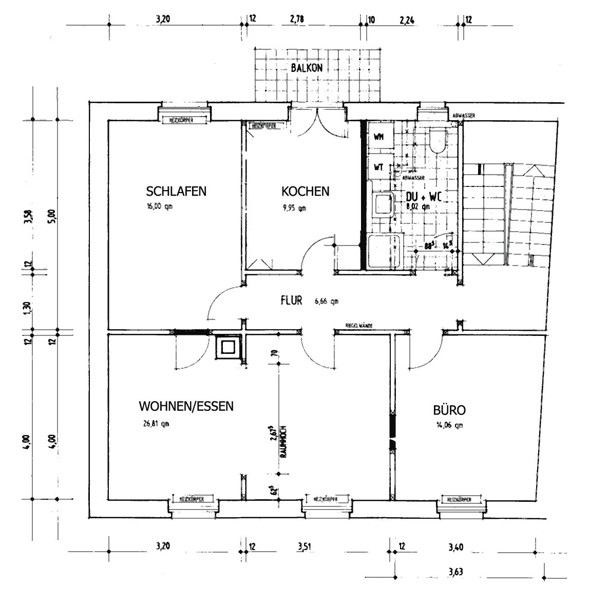
EG 3 ZKB, Balkon, 74 m² Wohnfläche
1.OG 3,5 ZKB, Balkon, 82 m² Wohnfläche
2.OG 3,5 ZKB, Balkon, 82 m² Wohnfläche
DG 3 ZKB, Balkon, 67 m² Wohnfläche

Voll unterkellert, mit einem ebenerdigen Kellergeschoss auf Straßenniveau und einer Garage direkt im Haus.
Die Beheizung erfolgt mit einer Gaszentralheizung aus dem Jahr 2003.

Wenn wir Ihr Interesse geweckt haben, dann kontaktieren Sie uns bitte.
Gerne lassen wir Ihnen ein ausführliches Exposé zukommen.

Ausstattung

Massive Bauweise als Mittelhaus mit 4 Balkonen, voll unterkellert und Garage im Haus. Überwiegend bebautes Grundstück mit Grünfläche am Hang hinter dem Haus.
Gaszentralheizung aus dem Jahr 2003, weiße Kunststoffrahmenfenster mit 2-Isolierverglasung aus dem Jahr 1995.
1985 wurde das Dach komplett neu eingedeckt.
Im Rahmen der einzelnen Wohnungssanierungen und Badmodernisierungen wurden Stromleitungen, Heizungsrohre, Brauchwasserleitungen, Abwasserleitungen und Heizkörper teilweise bereits erneuert.

Wohnzimmer EG

Wohnzimmer EG

Virtueller Rundgang

Fakten

250 m2

Grundstücksgröße

305 m2

Wohnfläche

12

Zimmer

4

Schlafzimmer

4

Etagen

4

Balkone

1928

Baujahr

Energieausweis

Energieausweis

Primärenergiebedarf 117.70 kWh / (m²*a) - Energieträger: Gas | Baujahr Heizung: 2003

Provision

3,57% inklusive der gesetzlichen MwSt. bezogen auf den Kaufpreis nach notariellem Vertragsabschluss.

Lage

Das Mehrfamilienhaus befindet sich in zentraler, etwas erhöhter Lage von Baden-Baden. In wenigen Gehminuten ist das Stadt-Zentrum mit allen wichtigen Einrichtungen des täglichen Lebens, wie Ärzte, Apotheken und Geschäfte zu erreichen. Wer nicht so gut zu Fuß ist und auf Autofahrten verzichten möchte, nimmt den Bus, der in der Nähe hält. Aber auch Freizeitaktivitäten können von hier aus wunderbar gestaltet werden, denn Schwimmbad, Museen, Theater, Kurhaus sowie Cafés und Restaurants befinden sich in der Nähe. Fußläufig erreichbar ist auch die Parkanlage an der Lichtentaler Allee - eine ansprechende Lage für Mieter.

Kaufpreis

849.000 €

Informationen

Entfernung zum nächsten Flughafen,
ca. 19.00 km

Entfernung zum nächsten Bahnhof,
ca. 7.10 km

Entfernung zum Zentrum,
ca. 1.30 km

Entfernung zum nächsten Kindergarten,
ca. 0.55 km

Entfernung zur nächsten Grundschule,
ca. 0.75 km

Entfernung zur nächsten Realschule,
ca. 0.75 km

Entfernung zum nächsten Gymnasium,
ca. 0.60 km

Ihr Ansprechpartner

Bjoern disse

Geschäftsinhaber

Björn Disse

07222-94440 disse@jutt-immobilien.de
Dipl. Sachverständiger für die Bewertung von bebauten und unbebauten Grundstücken, für Mieten und Pachten sowie Beleihungswertermittlung (DIA)

Unsere Standorte

Möchten Sie von Google Maps bereitgestellte externe Inhalte laden? Sie können die Darstellung dauerhaft über die Cookie Einstellungen erlauben.

Um mehr zu erfahren, lesen Sie bitte unsere Datenschutzerklärung.

Ihr Ansprechpartner

Björn Disse
Inhaber

Diplom Sachverständiger (DIA)

+49 (0)7222 9444 0 E-Mail senden

Ihr Ansprechpartner Björn Disse