• Innenhof
  • Wohnzimmer OG
  • Wohnzimmer OG
  • Esszimmer OG
  • Diele Obergeschoss
  • Küche Obergeschoss
  • Büro Obergeschoss
  • Badezimmer OG
  • Diele Obergeschoss
  • Gäste-WC Obergeschoss
  • Dachstudio
  • Ausbaureserve
  • Diele EG
  • Wohnen
  • Küche EG
  • Büro EG
  • Bad EG
  • Hof
  • Sattelkammer
  • Scheune
  • Pferdebox

Großes Haus im top Zustand in Iffezheim/Ideal für Familie o. Mehrgenerationenhaus

Innenhof

Innenhof

Objektbeschreibung

Großes Haus im top Zustand in Iffezheim/Ideal für Familie o. Mehrgenerationenhaus. Liebevoll modernisiert mit 3 Pferdeboxen.
Das Diehm Haus mit historischer Bekanntheit wurde 1791 erbaut und ab dem Jahr 2012 überwiegend saniert und in den letzten Jahren fortlaufend modernisiert.

Ein schönes Wohnambiente, nutzbar als Einfamilienhaus mit Einliegerwohnung oder Zweifamilienhaus. Oder auch eine Kombination aus Wohnen und Arbeiten unter einem Dach.
Besonders hervorzuheben für Pferdeliebhaber ist der sehr gut nutzbare Innenhof mit 3 modernen Pferdeboxen, Sattelkammer und Scheune. Eine seltene Gelegenheit dies innerorts mit guter Infrastruktur und direkter Nähe zu den Grünflächen und der Pferderennbahn in Iffezheim auszuleben.

Der Energieausweis liegt zur Besichtigung vor.

Es gibt viel zu entdecken.
Wenn wir Ihr Interesse geweckt haben, dann kontaktieren Sie uns bitte.
Gerne lassen wir Ihnen ein ausführliches Exposé zukommen.

Ausstattung

Über die Jahre vollständig fortlaufend modernisiert:
Fachwerkhaus mit Außenwänden vorwiegend aus Lehm-Strohwickel
Dämmung aller Außenwände von innen in 2012/13 mit 15 cm starker Mineralfaserwolle
Dämmung des Dachgeschosses mit 30 cm starker Mineralfaserwolle in 2012/13
Erneuerung 2-fach Kunststoff Isolierverglasung in 2016
Erneuerung der Heizungsanlage (Gas-Brennwert) in 2004 mit zusätzlichen Kaminöfen für feste Brennstoffe
Einbau einer solaren Warmwasserunterstützung in 2013
Erneuerung der Bäder

Wohnzimmer OG

Wohnzimmer OG

Virtueller Rundgang

Fakten

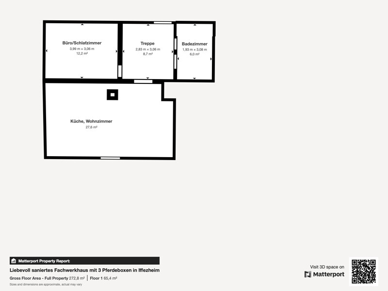
466 m2

Grundstücksgröße

288 m2

Wohnfläche

8

Zimmer

4

Schlafzimmer

3

Badezimmer

3

Etagen

1

Balkon

1791

Baujahr

Provision

3,57% inklusive der gesetzlichen MwSt. bezogen auf den Kaufpreis nach notariellem Vertragsabschluss.

Lage

Iffezheim ist eine charmante Gemeinde im Landkreis Rastatt in Baden-Württemberg, die sich durch ihre idyllische Lage und hervorragende Anbindung auszeichnet. Die Gemeinde liegt direkt an der Grenze zu Frankreich, nur wenige Kilometer von der Stadt Baden-Baden entfernt, und bietet somit eine attraktive Kombination aus ländlichem Flair und urbaner Nähe.

Die Gemeinde selbst bietet eine hohe Lebensqualität mit einer Vielzahl von Freizeitmöglichkeiten. Iffezheim ist von einer malerischen Landschaft umgeben, die zu ausgedehnten Spaziergängen, Radtouren und anderen Outdoor-Aktivitäten einlädt. Die Nähe zum Rhein und die angrenzenden Naturschutzgebiete bieten zudem zahlreiche Möglichkeiten zur Erholung und Entspannung in der Natur.

In Iffezheim finden sich zudem alle wichtigen Einrichtungen des täglichen Bedarfs, darunter Einkaufsmöglichkeiten, Schulen und Kindergärten. Die Gemeinde legt großen Wert auf ein aktives Gemeinschaftsleben und bietet zahlreiche Veranstaltungen und Aktivitäten für Jung und Alt.

Kaufpreis

499.000 €

Innenhof

Informationen

Autobahnanschluss,
ca. 5.00 km mit dem PKW

Entfernung zum nächsten Flughafen,
ca. 10.00 km

Entfernung zum nächsten Bahnhof,
ca. 0.10 km

Entfernung zum Zentrum,
ca. 0.10 km

Entfernung zum nächsten Kindergarten,
ca. 0.80 km

Entfernung zur nächsten Grundschule,
ca. 0.40 km

Entfernung zur nächsten Realschule,
ca. 1.00 km

Entfernung zum nächsten Gymnasium,
ca. 0.50 km

Ihr Ansprechpartner

Bjoern disse

Geschäftsinhaber

Björn Disse

07222-94440 disse@jutt-immobilien.de
Dipl. Sachverständiger für die Bewertung von bebauten und unbebauten Grundstücken, für Mieten und Pachten sowie Beleihungswertermittlung (DIA)

Unsere Standorte

Möchten Sie von Google Maps bereitgestellte externe Inhalte laden? Sie können die Darstellung dauerhaft über die Cookie Einstellungen erlauben.

Um mehr zu erfahren, lesen Sie bitte unsere Datenschutzerklärung.

Ihr Ansprechpartner

Björn Disse
Inhaber

Diplom Sachverständiger (DIA)

+49 (0)7222 9444 0 E-Mail senden

Ihr Ansprechpartner Björn Disse