
Objektbeschreibung
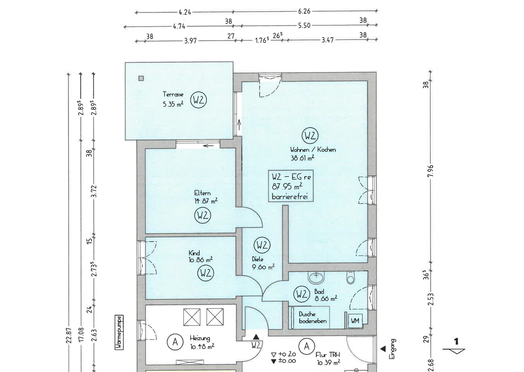
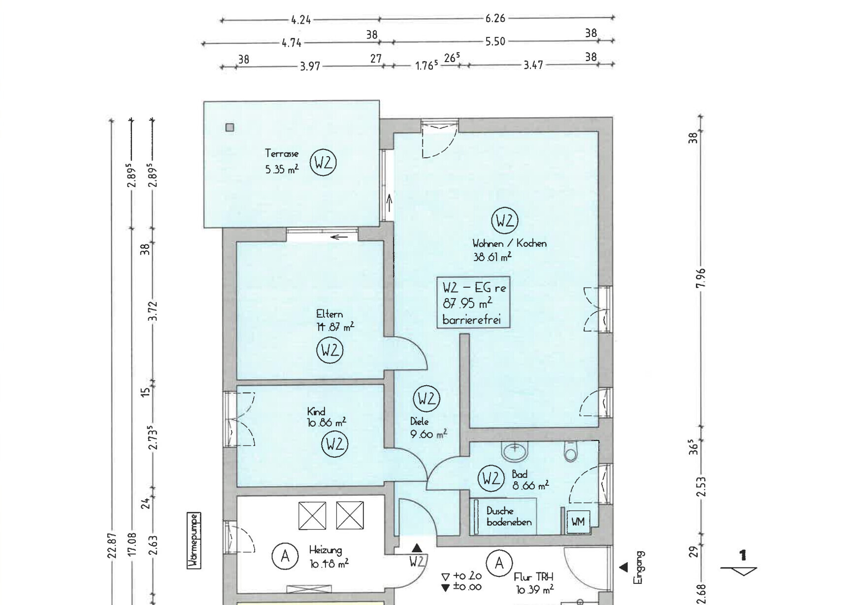
Moderne 3 Zimmer Erdgeschosswohnung mit Terrasse, Stellplatz und hohem Wohnkomfort in beliebter Lage von Rastatt. Gebaut nach neuestem Wärmeschutzstandard und in hochwertiger Ausstattung mit robusten Design-Bodenbelägen und großformatigen Fliesen.
Die Immobilie ist barrierefrei zugänglich. Aufgeteilt in ein Wohn-Esszimmer mit offener Küche, Schlafzimmer, Kinderzimmer, Duschbad, Diele und Terrasse.
Die Wohnung ist aktuell vermietet.
Für den Käufer entsteht keine Maklerprovision.
Es gibt viel zu entdecken.
Wenn wir Ihr Interesse geweckt haben, dann kontaktieren Sie uns bitte.
Gerne lassen wir Ihnen ein ausführliches Exposé zukommen.
Ausstattung
- Fußbodenheizung
- Videosprechanlage
- großformatige Fliesen
- robuster Designbelag
- heller Wohn/Essbereich
- nützlicher Abstellraum im Außenbereich
- modernes großes Badezimmer
- helles, geräumiges Treppenhaus
- Stellplätze direkt vor der Tür
Fakten
Wohnfläche
Zimmer
Schlafzimmer
Badezimmer
Etagen
Baujahr
Energieausweis

Primärenergiebedarf 18.70 kWh / (m²*a) - Energieträger: Elektro | Baujahr Heizung: 2022
Lage
Die Immobilie befindet sich in bevorzugter, belebter Wohnlage in Rastatt. Diese ideale Lage bietet im direkten Umfeld mehrere Restaurants, Bäckereien, Supermärkte und Ärzte. Ebenso sind Grün- und Parkanlagen, Bushaltestellen und der Bahnhof sowie ein Kino fußläufig erreichbar.
Rastatt bietet mit seiner sehr guten Infrastruktur eine gute Lebensqualität und ist mit wirtschaftsstarken Arbeitgebern nach wie vor Einzugsgebiet. Interessant ist diese Immobilie auch für Pendler aufgrund der guten Autobahnanbindung und Nähe nach Karlsruhe, Ettlingen, Baden-Baden, Kuppenheim, Gaggenau und Gernsbach.
Kaufpreis
392.400 €

Informationen
Autobahnanschluss,
ca. 2.80 km mit dem PKW
Entfernung zum nächsten Flughafen,
ca. 15.70 km
Entfernung zum nächsten Bahnhof,
ca. 0.70 km
Entfernung zum Zentrum,
ca. 1.30 km
Entfernung zum nächsten Kindergarten,
ca. 1.40 km
Entfernung zur nächsten Grundschule,
ca. 2.00 km
Entfernung zur nächsten Realschule,
ca. 2.60 km
Entfernung zum nächsten Gymnasium,
ca. 2.00 km
Ihr Ansprechpartner

Geschäftsinhaber
Björn Disse
07222-94440 disse@jutt-immobilien.deUnsere Standorte
Möchten Sie von Google Maps bereitgestellte externe Inhalte laden? Sie können die Darstellung dauerhaft über die
Cookie Einstellungen
erlauben.
Um mehr zu erfahren, lesen Sie bitte unsere Datenschutzerklärung.