• Halle 1
  • Halle 2
  • Halle 2
  • Laden/ Liefern
  • Verwaltung /Besprechung
  • Büro
  • Diele

Montage- u. Fertigungshalle mit ca. 6.000 m², Verwaltungsgebäude und großen Freiflächen in Rastatt

Objektbeschreibung

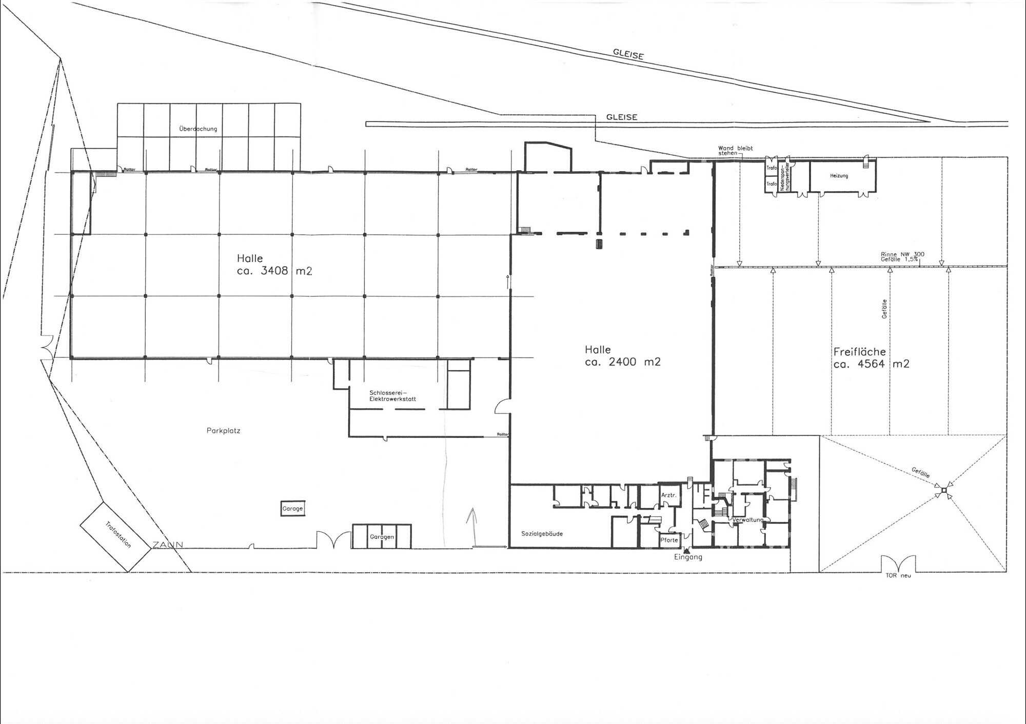
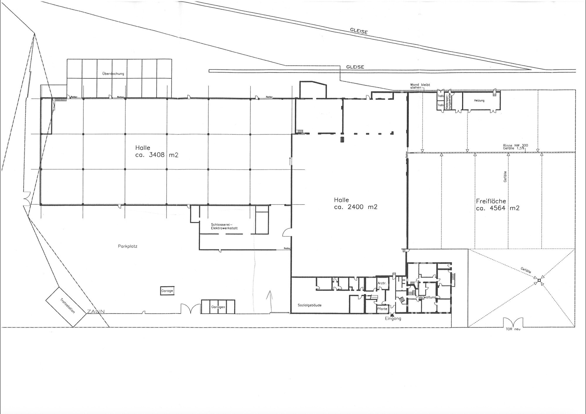
Bei der zum Verkauf kommenden Liegenschaft handelt es sich um ca. 6.000 m² Montage- und Fertigungshallen mit Verwaltungsgebäude und Freiflächen in Rastatt

Auf dem ca. 18.172 m² großem Gesamtareal befindet sich die ebenerdige Halle 1 mit einer Bruttogeschossfläche in Höhe von ca. 3.507 m² und Halle 2 mit einer Fläche i.H.v. ca. 2.605 m². Einem Verwaltungsgebäude mit ca. 1.050 m² verteilt auf 2 Etagen sowie einer Freifläche von ca. 4.500 m².

Es gibt viel zu entdecken.
Wenn wir Ihr Interesse geweckt haben, dann kontaktieren Sie uns bitte.
Gerne lassen wir Ihnen ein ausführliches Exposé zukommen.

Ein Energieausweis ist in Bearbeitung und liegt zur Besichtigung vor.

Ausstattung

- Verwaltungsgebäude (2 Etagen) teilweise klimatisiert
- Halle 1 und 2 Montagearbeiten
- Durchfahrtshalle mit Be- und Entladung
- Überdachte Be- und Entladung im Außenbereich
- Zufahrt und Abfahrt zur Durchfahrtshalle
- Mitarbeiter Parkplatz mit 61 Stellplätzen
- 10 Parkplätze vor dem Verwaltungsgebäude
- 4 Garagen

Montage- und Fertigungshallen:
Ausgestattet mit Gas-Warmluftheizung, Lichtkuppeln, Starkstromanschluss und Stromlichtbändern.

Büro/Verwaltugsgebäude:
Teils mit neueren und teils mit älteren Sanitäreinrichtungen, Zentralheizung, Doppelfenstern, PVC- und Teppichböden sowie Medienanschlüssen ausgestattet.
Zum Teil sind Klimaanlagen in Büroräumen installiert worden, die nach dem Auszug in Gebäude verbleiben.
Neben dem Verwaltungsgebäude steht auch eine Klima- und Lüftungsanlage für die Fertigungshalle.

Ein Notstromaggregat kann bei Bedarf vom nächsten Nutzer übernommen werden oder wird vom Gelände entfernt.

Die Hallen sowie das Verwaltungsgebäude wurden zuletzt durch einen Montagebetrieb zur Montage- und Fertigungsarbeiten genutzt und sind in gepflegter Ausstattung.

Halle 1

Halle 1

Fakten

18172 m2

Gesamtfläche

2001

Baujahr

Energieausweis

Energieausweis

Primärenergiebedarf 392.90 kWh / (m²*a) - Energieträger: Gas | Baujahr Heizung: 2001

Provision

3,57% inklusive der gesetzlichen MwSt. bezogen auf den Kaufpreis nach notariellem Vertragsabschluss.

Lage

Die Liegenschaft befindet sich in idealer Ecklage im Industriegebiet von Rastatt. Ca. 1,5 km zur Autobahnauffahrt Karlsruhe-Basel und ca. 8-10 km nach Frankreich bzw. zum Rhein-Grenzübergang

Kaufpreis
auf Anfrage

2.500.000 €

Ihr Ansprechpartner

Bjoern disse

Geschäftsinhaber

Björn Disse

07222-94440 disse@jutt-immobilien.de
Dipl. Sachverständiger für die Bewertung von bebauten und unbebauten Grundstücken, für Mieten und Pachten sowie Beleihungswertermittlung (DIA)

Unsere Standorte

Möchten Sie von Google Maps bereitgestellte externe Inhalte laden? Sie können die Darstellung dauerhaft über die Cookie Einstellungen erlauben.

Um mehr zu erfahren, lesen Sie bitte unsere Datenschutzerklärung.

Ihr Ansprechpartner

Björn Disse
Inhaber

Diplom Sachverständiger (DIA)

+49 (0)7222 9444 0 E-Mail senden

Ihr Ansprechpartner Björn Disse