
Objektbeschreibung
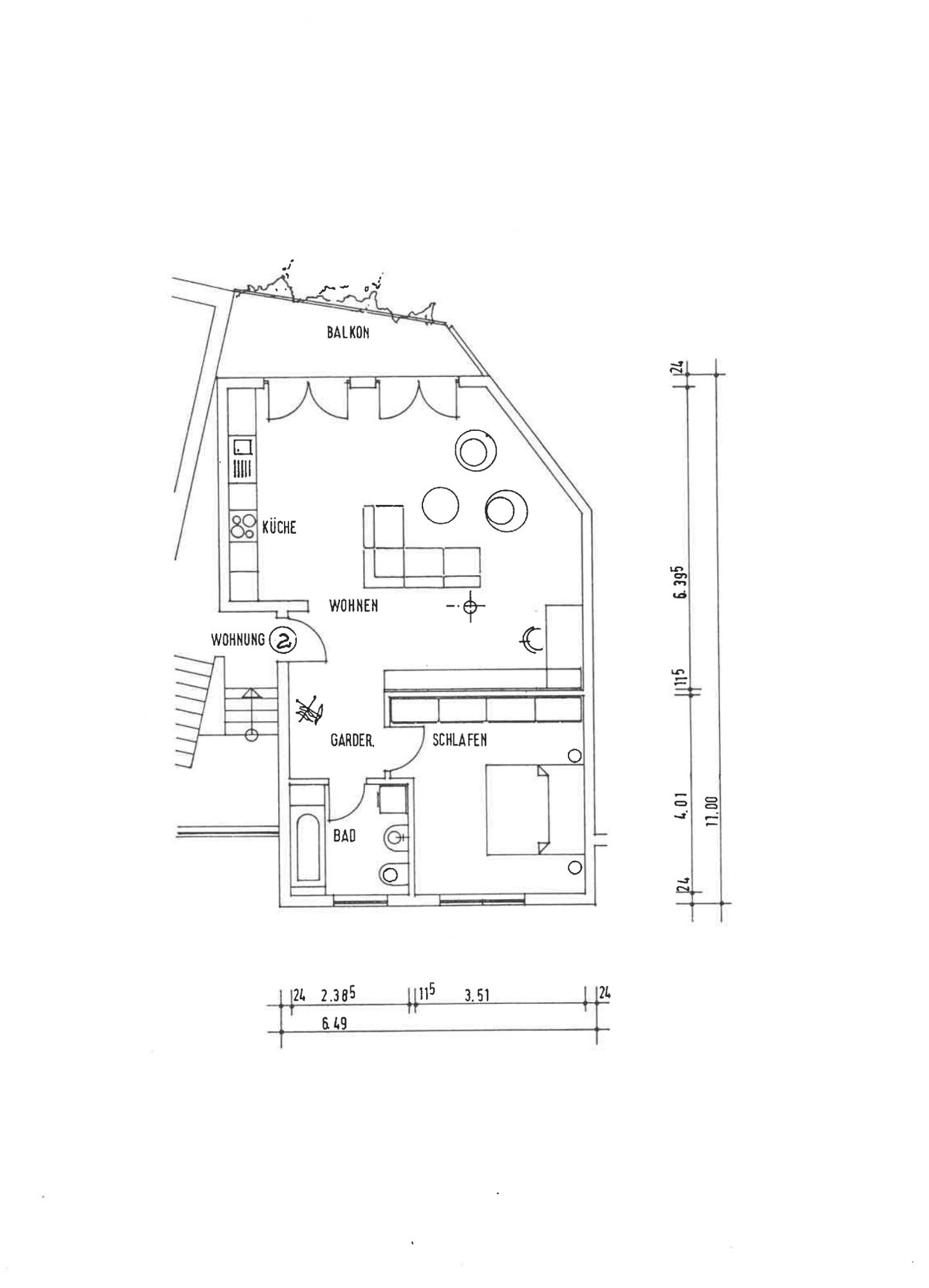
Diese charmante 2-Zimmerwohnung überzeugt durch ihre gut geschnittene, funktionale Raumaufteilung und ihre ruhige, naturnahe Lage. Die Wohnung befindet sich im Erdgeschoss (Hochparterre) eines gepflegten Mehrfamilienhauses und bietet auf ca. 63,50 m² Wohnfläche komfortablen Platz für Singles oder Paare.
Das großzügige Wohnzimmer ist lichtdurchflutet und mit Parkettboden ausgestattet. Es bietet ausreichend Platz für eine gemütliche Sitzecke sowie einen Essbereich. Die offene Küche fügt sich perfekt in den Raum ein. Vom Wohnzimmer aus gelangen Sie auf den Balkon, der zum Entspannen einlädt.
Zur Wohnung gehört ein Keller und ein Duplex-Stellplatz.
Es gibt viel zu entdecken.
Wenn wir Ihr Interesse geweckt haben, dann kontaktieren Sie uns bitte.
Gerne lassen wir Ihnen ein ausführliches Exposé zukommen.
Ausstattung
Gepflegtes Mehrfamilienhaus aus dem Baujahr 1993 mit insgesamt 13 Wohneinheiten verteilt auf 2 separate Hauseingänge. Die Beheizung erfolgt mit einer Gaszentralheizung.
Bodenbeläge mit Stäbchenparkett im Wohnbereich, neuwertigem Laminatboden im Schlafzimmer und gefliesten Badezimmer.
Weiße Holzrahmenfenster mit 2-fach Isolierverglasung aus dem Baujahr des Gebäudes mit Rollläden und weiße Innentüren.
Gepflegtes helles Bad mit Badewanne, Waschmaschinenanschluss und Fenster.
Zur Wohnung gehört ein Kellerraum und ein Duplex-Stellplatz.

Wohnen/Kochen/Essen
Virtueller Rundgang
Fakten
Wohnfläche
Zimmer
Schlafzimmer
Badezimmer
Balkon
Baujahr
Energieausweis

Primärenergiebedarf 175.50 kWh / (m²*a) - Energieträger: Gas | Baujahr Heizung: 1994
Provision
3,57% inklusive der gesetzlichen MwSt. bezogen auf den Kaufpreis nach notariellem Vertragsabschluss.
Lage
Die Immobilie liegt nahe dem Klinikum Mittelbaden im Baden-Badener Stadtteil Balg, einer ruhigen und gut erreichbaren Wohngegend. Sie haben eine hervorragende Anbindung an öffentliche Verkehrsmittel sowie schnelle Verbindungen zur Autobahn A5. Einkaufsmöglichkeiten, Cafés und Restaurants sind fußläufig erreichbar.
Das Stadtzentrum von Baden-Baden mit seinen kulturellen Highlights und Kuranlagen ist nur wenige Fahrminuten entfernt.
Die naturnahe Umgebung des Schwarzwaldes bietet zudem zahlreiche Freizeitmöglichkeiten.
Kaufpreis
199.000 €

Informationen
Autobahnanschluss,
ca. 6.20 km mit dem PKW
Entfernung zum nächsten Flughafen,
ca. 13.30 km
Entfernung zum nächsten Bahnhof,
ca. 2.90 km
Entfernung zum Zentrum,
ca. 7.30 km
Entfernung zum nächsten Kindergarten,
ca. 6.60 km
Entfernung zur nächsten Grundschule,
ca. 6.50 km
Entfernung zur nächsten Realschule,
ca. 7.10 km
Entfernung zum nächsten Gymnasium,
ca. 1.60 km
Ihr Ansprechpartner

Geschäftsinhaber
Björn Disse
07222-94440 disse@jutt-immobilien.deUnsere Standorte
Möchten Sie von Google Maps bereitgestellte externe Inhalte laden? Sie können die Darstellung dauerhaft über die
Cookie Einstellungen
erlauben.
Um mehr zu erfahren, lesen Sie bitte unsere Datenschutzerklärung.