Interessantes Mehrfamilienhaus mit 9 Wohnungen u. 6 Garagen zentral in Rastatt

Bereits verkauft
bereits verkauft

Objektbeschreibung

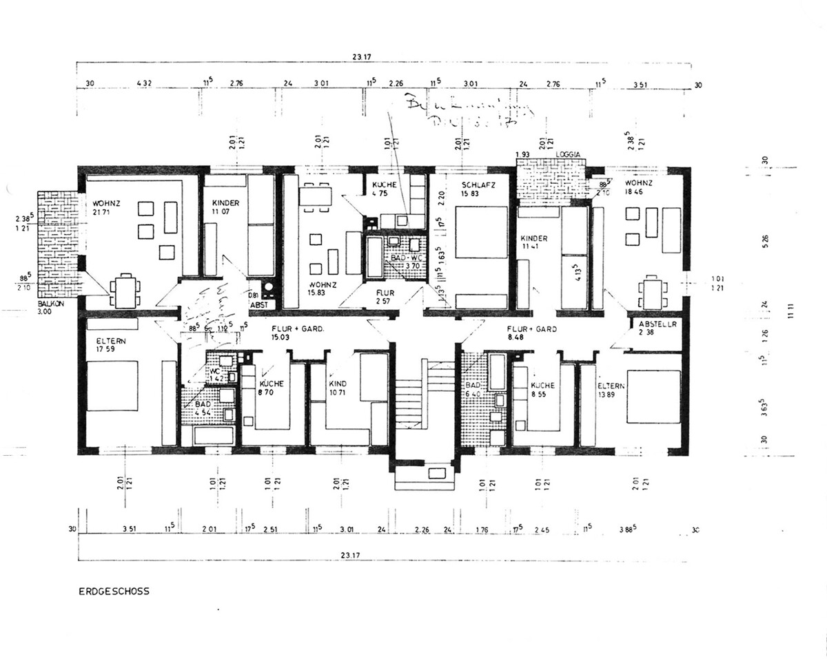
Freistehendes Mehrfamilienhaus in guter und zentraler Wohnlage von Rastatt. Das 1968 erbaute Haus teilt sich auf in 3 große 4 Zimmerwohnungen mit jeweils ca. 92 m² Wohnfläche, 3 mittlere 3 Zimmerwohnungen mit jeweils ca. 69 m² sowie 3 kleinere 2 Zimmerwohnungen mit jeweils ca. 41 m² . 6 von 9 Wohnungen haben einen Balkon. Aktuell sind alle 9 Wohnungen vermietet. Das Gebäude befindet sich in einem gepflegten Zustand. Zum Haus gehören ebenfalls 6 vermietete Garagen. Es gibt viel zu entdecken. Wenn wir Ihr Interesse geweckt haben, dann kontaktieren Sie uns bitte. Gerne lassen wir Ihnen ein ausführliches Exposé zukommen. Hinweis: Bevor Besichtigungstermine geplant werden, bitten wir um eine vorläufige Finanzierungszusage oder einen Eigenkapitalnachweis, damit Termine effizient stattfinden können.


Fakten

1554 m2

Grundstücksgröße

608 m2

Wohnfläche

27

Zimmer

18

Schlafzimmer

9

Badezimmer

3

Etagen

6

Balkone

1970

Baujahr

Energieausweis

Energieausweis

Primärenergiebedarf 134.10 kWh / (m²*a) - Energieträger: Öl | Baujahr Heizung: 2000

Provision

3,57% inklusive der gesetzlichen MwSt. bezogen auf den Kaufpreis nach notariellem Vertragsabschluss.

Informationen

Autobahnanschluss,
ca. 3 km mit dem PKW

Entfernung zum nächsten Flughafen,
ca. 14 km

Entfernung zum nächsten Bahnhof,
ca. 4 km

Entfernung zum Zentrum,
ca. 4 km

Entfernung zum nächsten Kindergarten,
ca. 3 km

Entfernung zur nächsten Grundschule,
ca. 4 km

Entfernung zur nächsten Realschule,
ca. 2 km

Entfernung zum nächsten Gymnasium,
ca. 4 km

Ihr Ansprechpartner

Bjoern disse

Geschäftsinhaber

Björn Disse

07222-94440 disse@jutt-immobilien.de
Dipl. Sachverständiger für die Bewertung von bebauten und unbebauten Grundstücken, für Mieten und Pachten sowie Beleihungswertermittlung (DIA)

Ihr Ansprechpartner

Björn Disse
Inhaber

Diplom Sachverständiger (DIA)

+49 (0)7222 9444 0 E-Mail senden

Ihr Ansprechpartner Björn Disse