• Außenansicht
  • Außenansicht

Kapitalanlage: 3-Zimmer-Eigentumswohnung in guter Wohnlage

Bereits verkauft
bereits verkauft
Außenansicht

Außenansicht

Objektbeschreibung

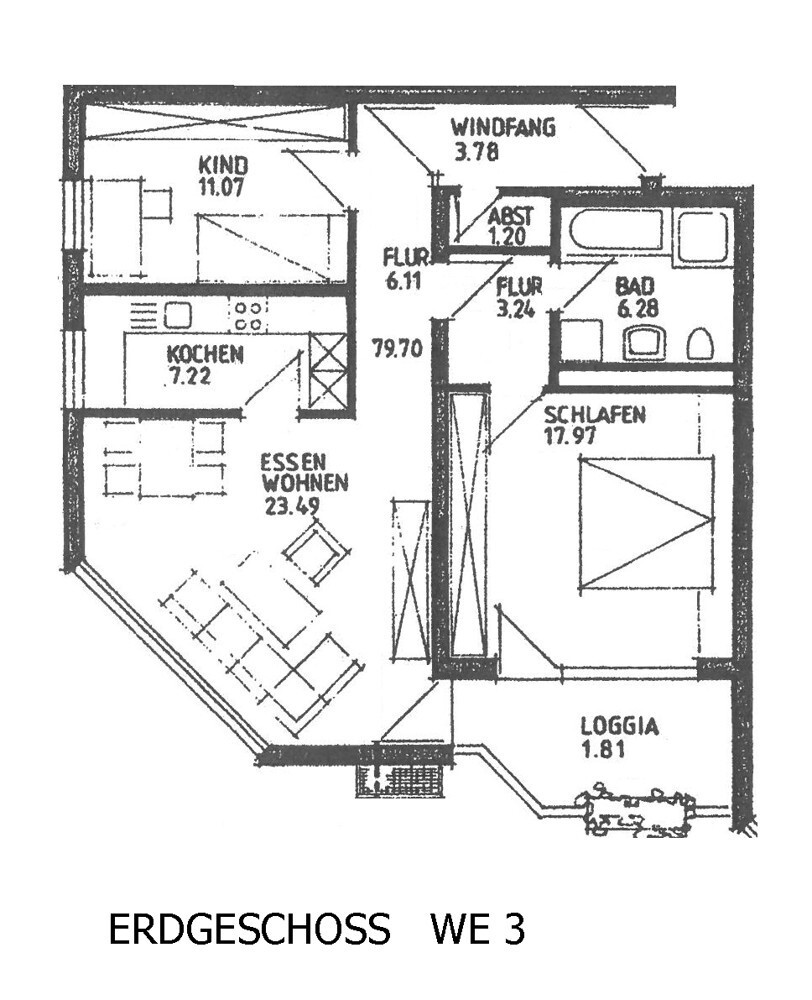
3 Zimmer Erdgeschosswohnung mit Balkon in einem Mehrfamilienhaus in Gaggenau-Ottenau. Klassisch aufgeteilt für eine Familie mit großen Wohnzimmer, Balkon, Küche, Badezimmer, Kinderzimmer und einem Schlafzimmer. Bis zum 31.12.2023 darf die Wohnung nur an jemand vermietet werden mit einem Wohnberechtigungsschein. Erst danach kann zu einer marktüblichen Miete vermietet werden. Wenn wir Ihr Interesse geweckt haben, dann kontaktieren Sie uns bitte. Gerne lassen wir Ihnen ein ausführliches Exposé zukommen.


Fakten

1142 m2

Grundstücksgröße

80 m2

Wohnfläche

3

Zimmer

1

Balkon

1983

Baujahr

Energieausweis

Energieausweis

Primärenergiebedarf 156.80 kWh / (m²*a) - Energieträger: Gas | Baujahr Heizung: 1983

Provision

3,57% inklusive der gesetzlichen MwSt. bezogen auf den Kaufpreis nach notariellem Vertragsabschluss.

Ihr Ansprechpartner

Bjoern disse

Geschäftsinhaber

Björn Disse

07222-94440 disse@jutt-immobilien.de
Dipl. Sachverständiger für die Bewertung von bebauten und unbebauten Grundstücken, für Mieten und Pachten sowie Beleihungswertermittlung (DIA)

Ihr Ansprechpartner

Björn Disse
Inhaber

Diplom Sachverständiger (DIA)

+49 (0)7222 9444 0 E-Mail senden

Ihr Ansprechpartner Björn Disse