
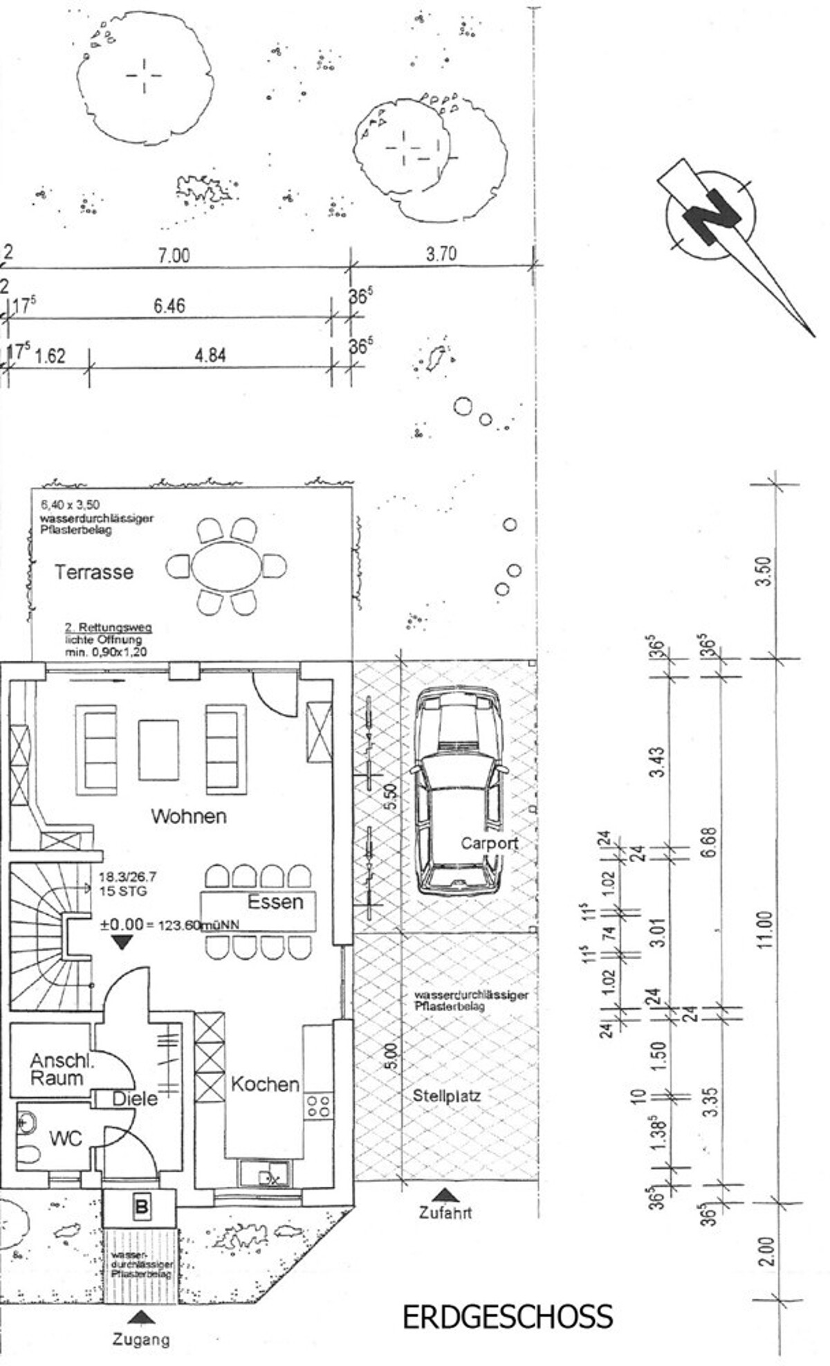
Objektbeschreibung
Modernes 3-geschossiges Einfamilien-Doppelhaus mit Pultdach und Dachterrasse in ruhiger Lage von Rastatt mit 6-Zimmern. Das Haus hat ca. 322 m² Grundstücksfläche und ca. 165 m² Wohnfläche und kostet schlüsselfertig € 599.000,--. Gebaut nach neustem Standard in massiver Bauweise. Sie erwartet eine gute Raumaufteilung mit großen Fensterflächen und viel Platz zum Wohnen. Es gibt viel zu entdecken. Wenn wir Ihr Interesse geweckt haben, dann kontaktieren Sie uns bitte. Gerne lassen wir Ihnen ein ausführliches Exposé zukommen.
Fakten
Grundstücksgröße
Wohnfläche
Zimmer
Schlafzimmer
Badezimmer
Etagen
Stellplätze
Baujahr
Energieausweis

Primärenergiebedarf 21.40 kWh / (m²*a) - Energieträger: Luftwärmepumpe | Baujahr Heizung: 2019
Ihr Ansprechpartner

Geschäftsinhaber
Björn Disse
07222-94440 disse@jutt-immobilien.de